Project Status: Under Construction
Estimated Project Completion: Q3 2026
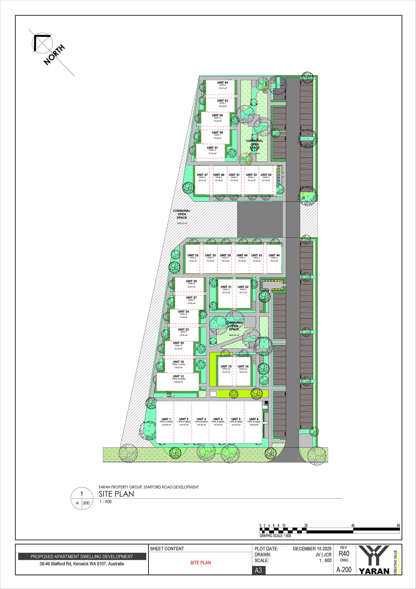
Kenwick Mews comprises a collection of 66 apartments, including 14 two-bedroom, two-bathroom residences and 52 one-bedroom, one-bathroom apartments.
Centrally located on Stafford Road, the project enjoys close proximity to supermarkets, healthcare services and public transport. Its convenient, well-connected setting makes it particularly appealing to first-home buyers and downsizers seeking comfortable, low-maintenance urban living.
Kenwick
